Dining Room - Room #5
Marsh & Clark Design
Stephanie Marsh Fillbrandt

A GATED SPACE

The dining room reimagines a once characterless space into one rooted in both architectural integrity and personal narrative. Originally lacking detail and stripped of its Victorian identity, the room has been reshaped into an octagonal form that feels historically grounded and naturally suited to gathering. Herringbone oak floors and finely milled English paneling restore depth and a sense of age. At its core, the design reflects a focus on relationships, inspired by two close friends who each battled cancer—one the epitome of elegance, the other all edge. Their strength and spirit are expressed through a balance of softness and structure in the space. A custom Marsh & Clark Design dining table transforms from an undulating oval into an extended form, symbolizing connection and adaptability, while reclaimed vintage chairs encircle it beneath a coved ceiling finished with hand-applied florals. A sculptural installation of hand-hewn metal gates anchors the room and introduces a powerful focal point and metaphor—exploring threshold, protection, and openness within a space designed for coming together.

Film details for Stephanie’s all-edge friend…. click here

Dining Room


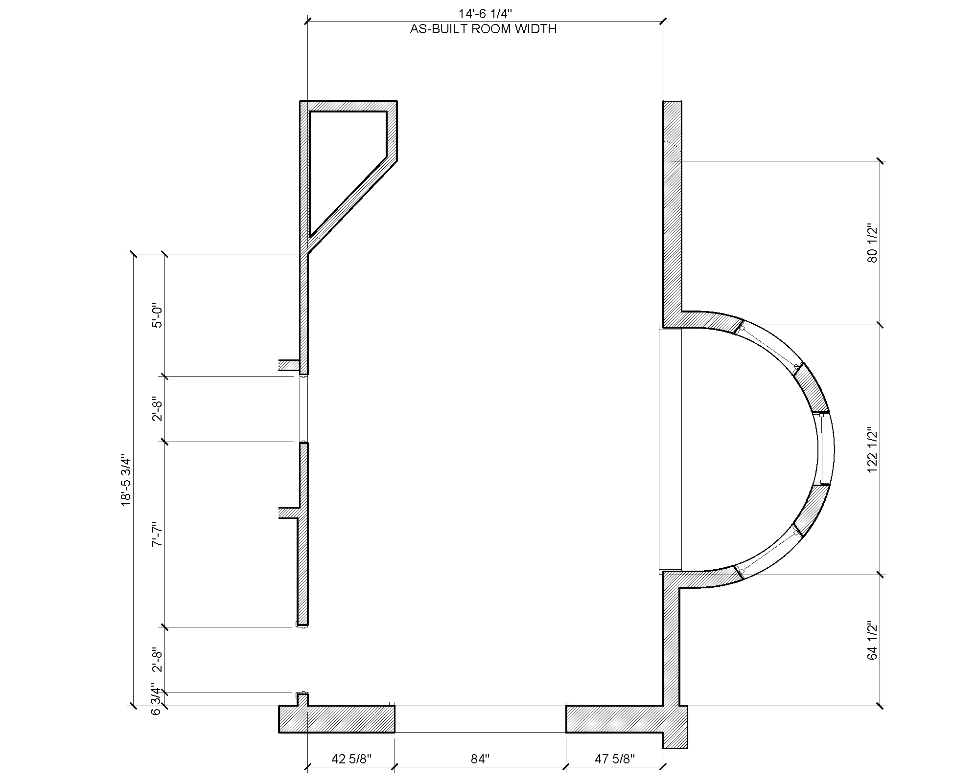
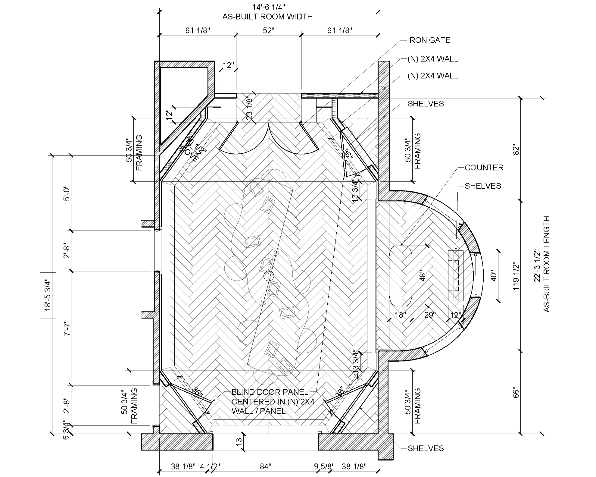
FLOOR PLAN

Our new floor plan was developed to establish a more inviting dining room. Shown here are the details of the redesigned layout, including newly introduced walls, paneling, cove details, baseboards, and patterned flooring. Bringing the vision to life was no small undertaking. Faherty Construction guided the process from concept to completion, seamlessly coordinating the work of vendors and fabricators. Their attention to detail is unmatched.

Before

After

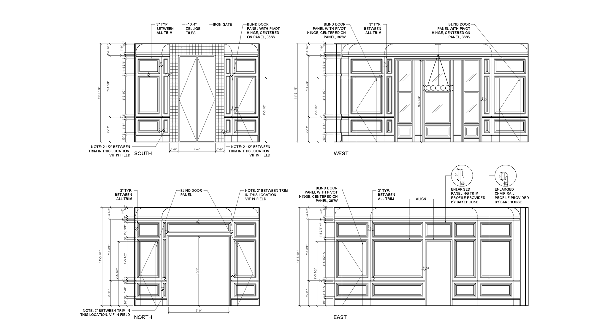
Dining Room


ELEVATIONS

Custom paneling designed by Stephanie conceals hidden corner closets, providing discreet storage for silver and china. The English countryside–inspired millwork is made from wood sourced and milled by Bakehouse in Rutland, England.

Dining Room


FOCAL POINT

The room is centered around a pair of custom gates inspired by antique gates Stephanie had admired years before, but could never acquire. With no known maker to reference, the design was thoughtfully interpreted in the character of the originals. Lust Design Fabricate collaborated with Stephanie to realize the ambitious piece. Soaring 10 feet high, the gates now command the space as its defining focal point.

Dining Room


MATERIALS

Bespoke materials fill the room - walnut, handmade tile, alpaca, custom iron patina, decorative paint, limewash, handblown glass, wool, silk, plaster, cashmere, and stone.

2026 Decorators Showcase


PARTNER/VENDOR LIST

Accessories & Floral

The Future Perfect

Sue Fisher King

Abby St. Claire

Art/Artists

Lust Design Fabricate (iron gates and drapery rod)

Elan Evans (decorative painting)

Nicole Hayden (decorative painting)

Lindenbaum Art Advisory (art consultant)

Anthony Meier (art gallery)

  • Leonardo Drew, Number 120SD, 2022; Cotton, aluminum, and wood on paper; 38 × 38 × 8 inches

Berggruen Gallery (art gallery)

  • Dean Byington, House #4, 2026; Oil on linen; 20× 17 inches

  • John Alexander, The Stare; Pencil and gouache on paper; 15-3/4 × 13-1/2 inches

Construction/Materials/Trades

Faherty Construction, GC

Landa Electric

Bakehouse (English panel molding)

Beronio (trim)

Amber Flooring

Corston (lighting controls)

Cook Construction, Showcase GC

Jack Trux (furniture moving)

Furniture/Makers

Marsh and Clark Custom Table Design (table design)

Marsh and Clark Custom Bar Design (bar design)

Marsh and Clark Custom Shelving Design (tile casework design)

Andrew Woodside Carter (dining table fabrication)

Lighting

Coup d’Etat, Ochre (center fixture)

Visual Comfort & Co (recessed lights)

Paint/Painter

Ross Paint Services (primary painter)

Gray’s Paints, Fine Paints of Europe, Meoded (paint)

Tile/Stone

Da Vinci Marble (stone)

Filiberto Martinez (stone fabricator)

Global Tile Design (tile)

Anaya Tile (tile setter)

Rug

Armadillo

Textiles/Upholstery

Anna French (drapery textile)

De Sousa Hughes, The Romo Group (chair textile)

Holland and Sherry (chair textile)

Shears and Window, Sandra Jordan Prima Alpaca (chair textile)

DCL Productions (embroidery)

Susan Lind Chastain (drapery fabrication)

R & M Upholstery (chair upholstery)

Golden Gate Wallcovering (closet wall covering installation)

Photography

Paul Dyer

Eli Blanton

About the Designer


The experience of beauty within a space—how it feels, functions, and unfolds over time—guides Stephanie Fillbrandt’s approach to design. With more than two decades shaping interiors across San Francisco, she brings a deep passion for reimagining interior architecture, informed by a love of math and a balance of intuition and precision. Collaboration is central to her process. Stephanie thrives on working alongside artisans and fellow design professionals, knowing the most compelling ideas emerge through shared creativity. She welcomes complexity, meeting each challenge head-on with thoughtful, inventive solutions that elevate both the design and those who experience it.

For an appointment with Stephanie, reach out here.

STEPHANIE MARSH FILLBRANDT

About the Showcase


THE SAN FRANCISCO DECORATOR SHOWCASE

The 2026 San Francisco Decorator Showcase invites you to explore an extraordinary Queen Anne-style Victorian residence at 2315 Broadway Street in Pacific Heights. Built in 1897 and designed by architect Moses J. Lyon, the historic home spans nearly 10,000 square feet and will serve as the setting for the iconic design event, taking place April 25 – May 25, 2026. This year’s house is a must-see celebration of creativity, craftsmanship, and community.

All proceeds benefit the Financial Aid Program at University High School.

Buy tickets here.

THE TEAM

Stephanie Marsh Fillbrandt
Principal Designer

Aurora Pacañot
Office Manager + HR

Dani Benak
Designer

Jean Orino
Architect

Emmanuel Bentinganan
Junior Designer